工事概要

HOME | 工事概要

工事の目的

PURPOSE
本工事は、金城ふ頭の埋立を目的とした、金城ふ頭埋立地用地整備工事です。

工事概要について

ABOUT
工事名

金城ふ頭埋立地用地整備工事

工事場所

名古屋市港区金城ふ頭三丁目及び

工事期間

令和8年3月24日~令和9年5月25日 8:00~17:00

一般平面図

表層改良工

中川運河護岸改良工事(その4) 施工方法

軟弱地盤安定工

中川運河護岸改良工事(その4) 護岸改良工事

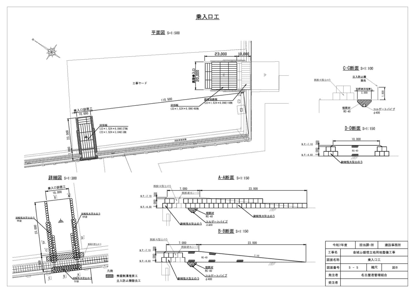
乗入口工

中川運河護岸改良工事(その4) 護岸改良工事

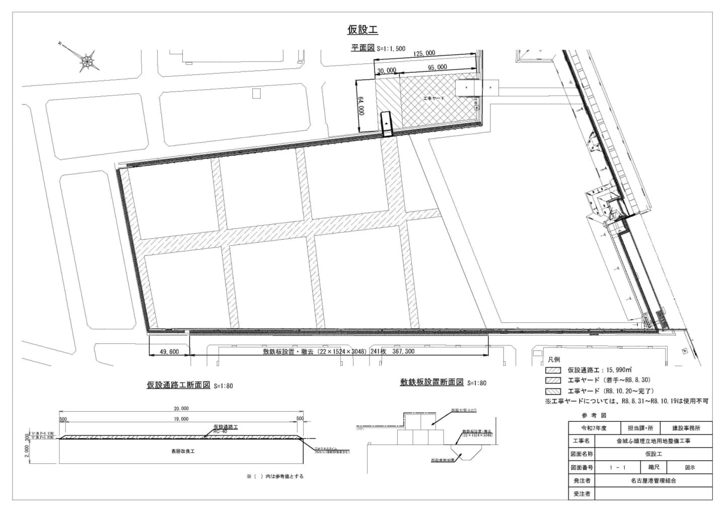
仮設工

中川運河護岸改良工事(その4) 護岸改良工事

地図

MAP
中川運河護岸改良工事(その4) 工事場所