工事概要

HOME | 工事概要

工事の目的

PURPOSE
本工事は、大江川河口部において護岸を築造することを目的とした、大江川河口部護岸築造工事のうち、鋼管矢板・鋼管杭の打設を主に行う工事です。

工事概要について

ABOUT
工事名

大江川河口部護岸築造工事

工事場所

名古屋市港区昭和町地先

工事期間

令和7年7月29日~令和8年3月25日 8:00~17:00

※土曜日、日曜日は作業を行いません。

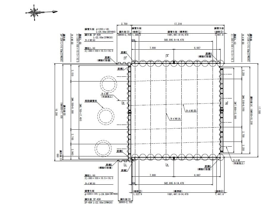
平面図
 

詳細平面図

標準断面図

施工方法

鋼管矢板・鋼矢板打設工法

鋼管矢板及び鋼矢板は、杭打船(ハーフセップ台船)より海上から打設します。
鋼管矢板はバイブロハンマ+油圧ハンマ、鋼矢板はバイブロハンマで打設します。