工事概要

HOME | 工事概要

工事の目的

PURPOSE
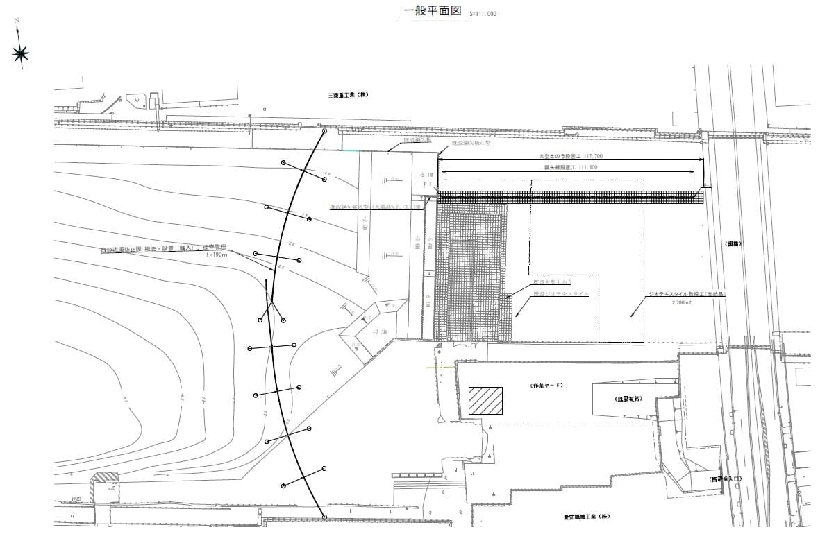
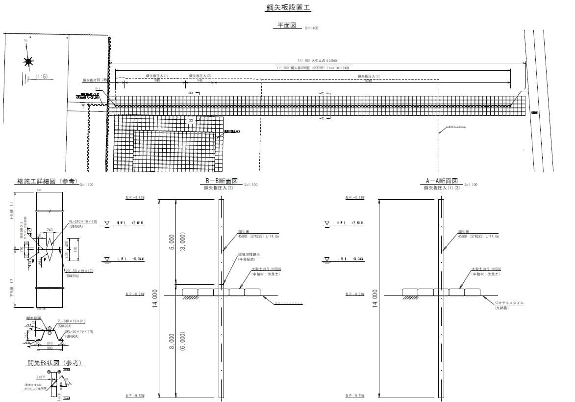
本工事は、大江川河口部において用地整備を目的とした、大江川用地整備工事(その5)のうち、鋼矢板の打設を主に行う工事です。

工事概要について

ABOUT
工事名

大江川用地整備工事(その5)

工事場所

名古屋市港区昭和町地先

工事期間

令和7年11月15日~令和8年9月25日 8:00~17:00

※土曜日、日曜日は作業を行いません。

平面図
 

詳細平面図