工事の目的
PURPOSE
天宝ポンプ場は、東海市南西部に位置する雨水ポンプ場であり、平成8年4月に供用開始され、名古屋港に排水しています。
供用開始時は、雨水沈砂池が3池、ポンプ設備が3台設置され、その後平成25年にポンプ設備が1台増設されました。
また、平成24年および平成25年に沈砂池の一部とポンプ棟への耐震補強工事が実施されています。
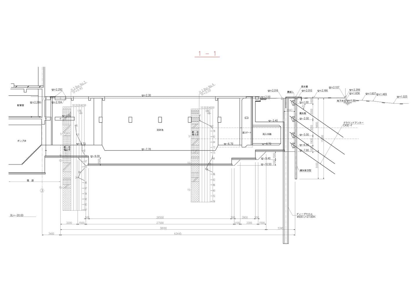
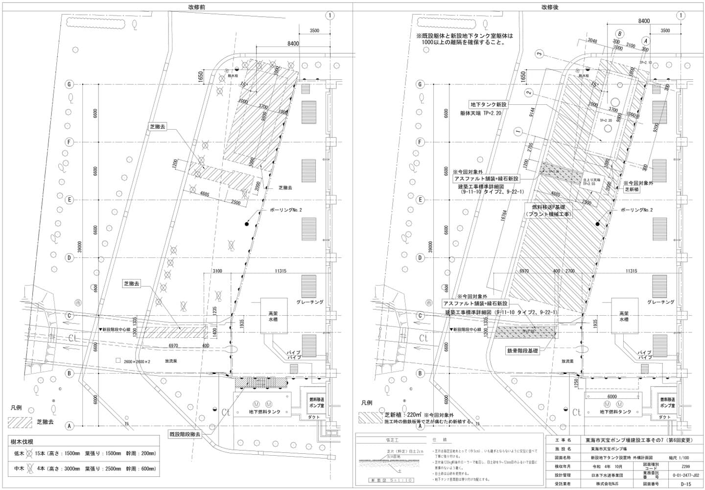
本工事では、4池目の雨水沈砂池の増設および既設水路への耐震補強工事を行います。
工事概要について
ABOUT
工事名 | 東海市天宝ポンプ場建設工事その7 |
---|---|
工事場所 | 東海市大田町地内 |
工事期間 | 令和4年11月9日~令和7年3月7日 8:00~17:00 ※工期を変更しました。 |
工事内容(土木工事) | 沈砂池工 土工(床掘り 土砂5,650m3、岩塊・玉石1,970m3) 躯体工:コンクリート(1,858m3)、型枠工(2,143m2)、鉄筋工(225t)、くさび結合支保工343空m3、手摺先行型枠組足場1,768掛m2 仮設工:鋼矢板Ⅲ圧入引抜 L=8.5m 8枚 鋼矢板Ⅳ圧入引抜 L=13.5m 10枚、L=14.5m 11枚、L=15.0m 53枚、L=16.0m 52枚、L=16.5m 24枚 グラウンドアンカー 1段目~4段目 φ12.7mm L=7.0m~13.5m 89本 ディープウェル φ600mm L=27m 6箇所 既設復旧工:舗装復旧工、側溝復旧工、L形側溝復旧工、L形側溝改修工、雨水枡復旧工、塩ビ管敷設工 1式 既設撤去工:舗装撤去工、側溝撤去工、雨水枡撤去工、塩ビ管撤去工 1式 植栽工:植栽移設工、張芝工 1式 雨水切り回し工:雨水切り回し北面、東面 1式 雑工:グレーチング、コンクリート製蓋・受枠、合成木材角落し用受枠、足掛け金物等、落とし込み取手、アルミ手摺、打継目止水板 1式 既設耐震補強工:底版増打補強工、鉄筋補強工、撤去復旧工 1式 場内整備工 雑工:給水管切り回し工事、屋外電灯設備工事 1式 |
工事内容(建築工事) | 地下タンク室 1式 鉄骨階段 1式 |
---|
一般平面図

仮設工



躯体工




建築工事
